LAUNCHGOOD HQ
LAUNCHGOOD HQ
Preserving the historical property of the Essex County jail and giving it a new use. A new business model that anchors an online brand in a permanent physical space. LaunchGood is a crowdfunding platform with a focus on supporting Muslim communities and projects.


Research
Research
Newark has become a transit point for migrants being transported from other states. It also holds a long history of immigration and boasts a diverse population, making this location profound for LaunchGood HQ. Transitioning from solely online interactions to needing a physical location for customer meetings, consultations, or retail operations, a physical office becomes essential.
Newark has become a transit point for migrants being transported from other states. It also holds a long history of immigration and boasts a diverse population, making this location profound for LaunchGood HQ. Transitioning from solely online interactions to needing a physical location for customer meetings, consultations, or retail operations, a physical office becomes essential.
Research
Newark has become a transit point for migrants being transported from other states. It also holds a long history of immigration and boasts a diverse population, making this location profound for LaunchGood HQ. Transitioning from solely online interactions to needing a physical location for customer meetings, consultations, or retail operations, a physical office becomes essential.
Design
Design
The design was guided by three main goals: fostering innovation in the workplace, cultivating unity and community, and encouraging proactive charity. Each space is envisioned as part of a dynamic environment that inspires collaboration, motivation, and growth. The project emphasizes bringing communities together to build strong networks of support while providing local resources and relief. At its core, the design is inspired by a central pillar of Islam — charity — expressed through hands-on initiatives and reimagined approaches to giving back.
The design was guided by three main goals: fostering innovation in the workplace, cultivating unity and community, and encouraging proactive charity. Each space is envisioned as part of a dynamic environment that inspires collaboration, motivation, and growth. The project emphasizes bringing communities together to build strong networks of support while providing local resources and relief. At its core, the design is inspired by a central pillar of Islam — charity — expressed through hands-on initiatives and reimagined approaches to giving back.
Design
The design was guided by three main goals: fostering innovation in the workplace, cultivating unity and community, and encouraging proactive charity. Each space is envisioned as part of a dynamic environment that inspires collaboration, motivation, and growth. The project emphasizes bringing communities together to build strong networks of support while providing local resources and relief. At its core, the design is inspired by a central pillar of Islam — charity — expressed through hands-on initiatives and reimagined approaches to giving back.
Development
Development
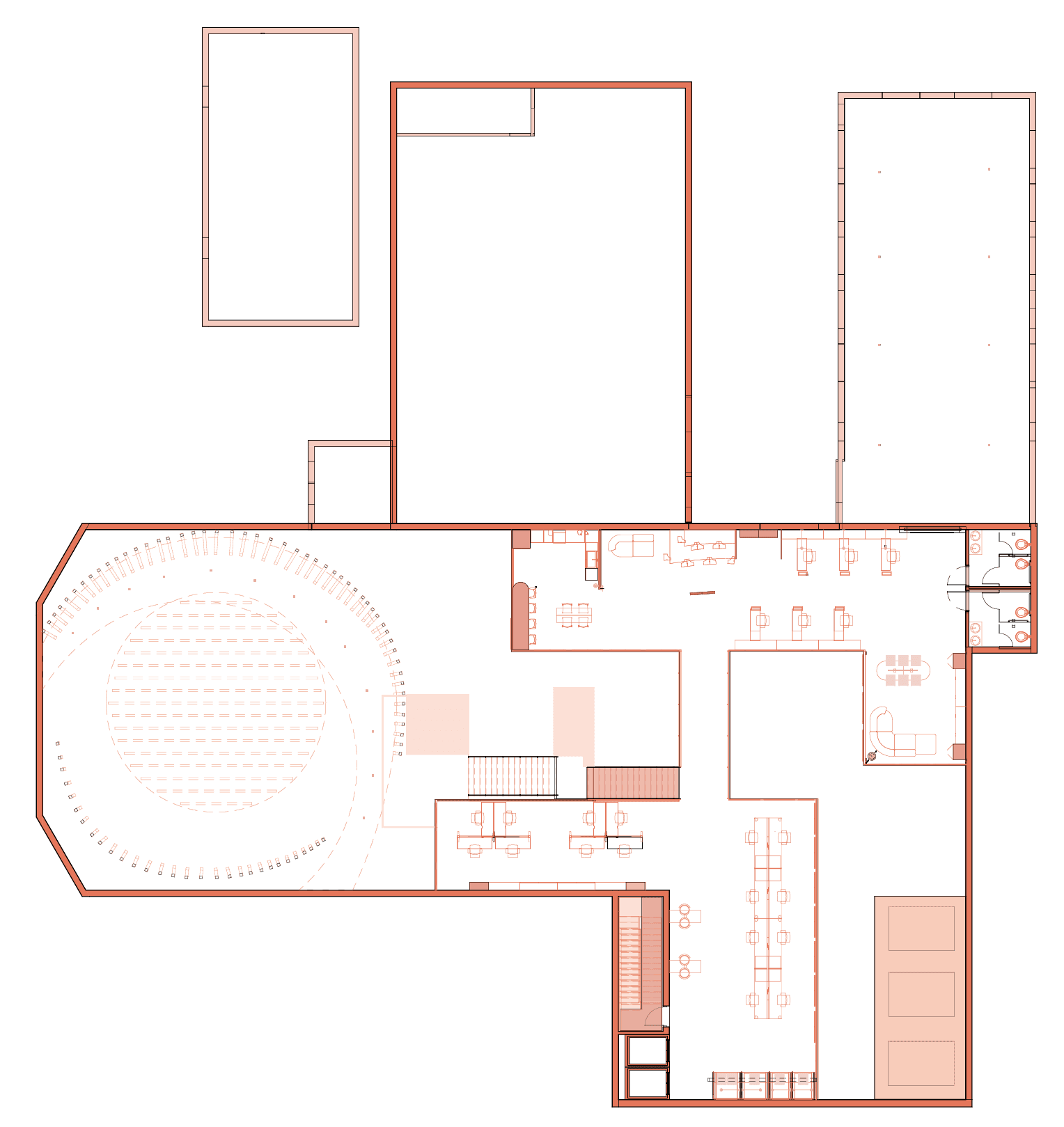
Finalizing proposed programming and an adjacency diagram, the design quickly developed. The building’s form evolves from the idea of levels that diverge and converge, symbolizing balance between separation and connection. Floor areas were shaped by departmental needs, with square footage driving both layout and flow.
Finalizing proposed programming and an adjacency diagram, the design quickly developed. The building’s form evolves from the idea of levels that diverge and converge, symbolizing balance between separation and connection. Floor areas were shaped by departmental needs, with square footage driving both layout and flow.
Development
Finalizing proposed programming and an adjacency diagram, the design quickly developed. The building’s form evolves from the idea of levels that diverge and converge, symbolizing balance between separation and connection. Floor areas were shaped by departmental needs, with square footage driving both layout and flow.


Concept
Concept
The play of lines symbolizes the connections that unite communities across borders. They also embody a sense of endless opportunity and the spirit of charitable work. The main stairs act like the spine of the building, bringing all of the levels together.
The play of lines symbolizes the connections that unite communities across borders. They also embody a sense of endless opportunity and the spirit of charitable work. The main stairs act like the spine of the building, bringing all of the levels together.
Concept
The play of lines symbolizes the connections that unite communities across borders. They also embody a sense of endless opportunity and the spirit of charitable work. The main stairs act like the spine of the building, bringing all of the levels together.



















More Works More Works
More Works More Works
©2025 ARCHIVES DESIGN
Go Back To Top
©2025 ARCHIVES DESIGN
Go Back To Top

